Két sắt âm tường KAT400
- Mã SP: KAT400
- Loại SP: Két Sắt Âm Tường
- Thương hiệu:
Kích thước: cao350*rộng400 *sâu250
Khối lượng: 50 ± 5 kg
Bảo hành: 5 năm
Liên hệ giảm giá: HCM: 091442 7976 / HN: 0969.5262.79
Đã bán: 1272
Tình trạng: Còn hàng
HỒ CHÍ MINH
82 Phan Đăng Lưu, Phường 5, Quận Phú Nhuận
(Gần Trường Tiểu Học Cao Bá Quát - Kế bên quán Chuối Nướng) 0914.42.7976 - 0948.02.07.88
0914.42.7976 - 0948.02.07.88
HÀ NỘI
1116 Đê La Thành, Ngọc Khánh, Ba Đình, HN
(khoảng giữa Đại học Giao Thông Vận Tải và Bệnh viện Phụ Sản)0969.52.62.79
Click Xem bản đồ
Phú Gia An xin được tư vấn một số đặc điểm về việc thiết kế riêng cho két âm tường.
Két Sắt Âm Tường KAT400
Thông số kĩ thuật và cấu tạo
- Sản xuất theo kích thước đặt hàng, phù hợp với nhu cầu cất giữ tài sản của từng khách hàng
- Thiết kế nhỏ gọn, đảm bảo tính kín đáo tuyệt đối khi lắp âm tường
- Chất liệu thép dày từ 10mm đến 16mm, chống khoan cắt hiệu quả
Hệ thống khoá
- Sử dụng khóa cơ và khóa chìa, đảm bảo độ bền cao
- Không khuyến khích dùng khóa điện tử hoặc vân tay do môi trường âm tường dễ bị ẩm
Hướng dẫn lắp đặt
- Vị trí lắp đặt: Nên chọn khu vực đơn giản, ít gây chú ý để tăng tính bảo mật
- Lên kế hoạch từ khi xây nhà: Độ dày tường phổ biến từ 100 - 250mm, cần tính toán trước để đảm bảo kích thước két phù hợp
- Không cần chức năng chống cháy: Vì bản thân tường đã có khả năng cách nhiệt tốt
- Chế tạo từ thép dày cao cấp, chống cạy phá bằng xà beng, búa
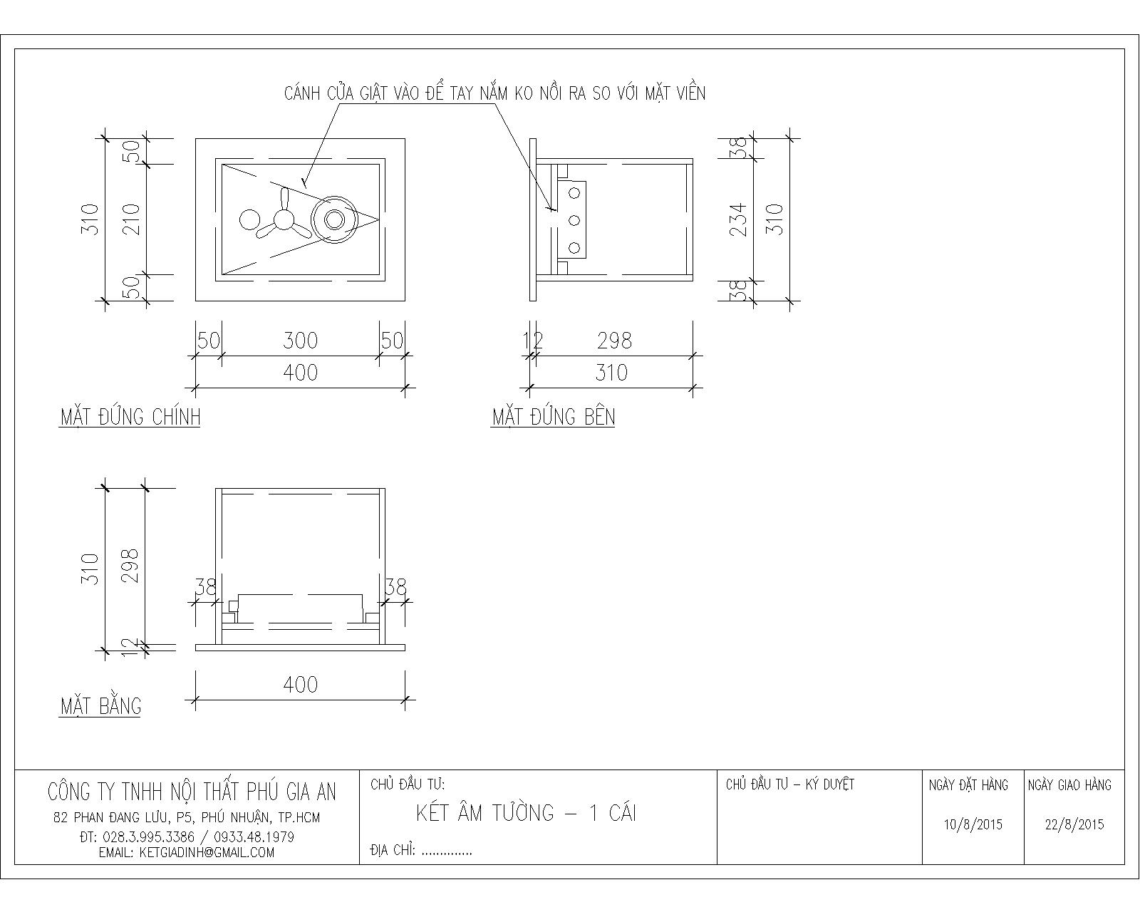
Dưới đây là bản vẽ két sắt thiết kế riêng cho khách hàng của công ty Phú Gia An

Két sắt Phú Gia An cam kết cung cấp sản phẩm mới 100%, đảm bảo rõ ràng về nguồn gốc xuất xứ, bảo hành 36 tháng tại nhà. Sản phẩm được đóng gói cẩn thận khi giao đến tay khách hàng, đảm bảo bảo mật thông tin tuyệt đối.
